경기도 성남 줍줍 산성역 포레스티아 ( 시세차익 9억 예상 )
성남 산성역 계약 취소 물량 줍줍이 나왔습니다.
산성역 포레스티아는 성남의 대단지로 4089세대 총 39동으로 이루져 있고,
입지는 8호선 산성역 바로옆에 자리잡은 초역세권 아파트라 할수 있습니다.
성남시 수정구청, 성남 교육도서관, 이마트, 세이브존이 가까이 있고 초등학교과 중학교가 가까이 있습니다.
17년 8월 분양가 그대로 적용되며, 전용 84의 경우는 약 8-9억 가량의 시세차익이 예상되고 있습니다.
59형 1개, 84형 2개 총 3개 물량이 나왔습니다.
1. 공급내역
- 공급위치 : 경기도 성남시 수정구 신흥동 10번지 일원
- 공급규모 : 아파트 지하 3층, 지상 9~28층 39개 동 총 4,089세대 중 계약취소 주택 3세대
[일반공급 2세대, 특별공급 1세대(다자녀가구)]
- 최초 입주시기 : 2020년 07월 입주 (금회 공급분에 대해서는 잔금 납입 완료 후, 입주 가능)
2. 공급금액 및 세대수
59 타입 (1세대) 4.8억 : 특별공급 다자녀
84타입 (2세대) 5.9억 : 일반 공급

일반 공급 2세대 84A 는 무작위 추첨 입니다.
계약 취소 줍줍 특성상 기존에 계약 취소가 된분들이 선택했던 확장 여부 옵션을 그대로 가져 간다고 합니다.
84A타입은 일반공급으로
59A는 113동 2805호,
84A는 112동 301호, 114동 302호 입니다.
계약금 10%, 잔급 90%가 필요 합니다. ( 중도금 없습니다. )
3. 청약 일정
특별 공급 : 12월 9일(목)
일반 공급 : 12월 10일(금)
당첨자 발표 : 12월 16일(목)

4. 청약 자격과 기타 사항
- 금회 입주자 모집공고일 : 2021.11.29
1) 다자녀 특공 ( 59A 타입 1세대 )
- 입주자모집공고일 현재 해당 성남시에 거주 무주택 구성원
- 청약통장은 필요 없음.
- 100% 추첨을 통해 선정
- 자녀 3명 이상
- 외국인 신청 안됨
- 세대원도 청약 가능
2) 일반 공급 ( 84A 2세대 )
- 입주자모집공고일 현재 해당 성남시에 거주 무주택 구성원
- 청약통장은 필요 없음.
- 100% 추첨을 통해 선정
- 만 19세 이상 세대주 신청
- 자녀수에는 태아나 입양자녀도 포함
3) 공통사항
- 무주택세대 내 2명 이상이 각각 특별공급과 일반공급으로 청약하여 모두 당첨될 경우 특별공급 당첨은 인정되나,
일반공급은 부적격(재당첨 제한) 처리
- 당첨자 및 세대에 속한 자는 당첨일로부터 향후 5년간 투기과열지구 및 청약과열지역에서 공급하는 주택의 1순위 청약접수가 제한
5. 단지 배치도 & 실거래가
산성역 3번출구를 끼고 있어, 역과의 접근성은 초역세권이라 할 수 있고 상당히 가깝습니다

줍줍 청약으로 나온 112, 113,114동은 비교적 멀지만 도보 10분내로 접근이 가능합니다.

<전용 59 실거래가> - 이번 줍줍 분양가 59A : 4.8억

<전용 84 실거래가 > - 이번 줍줍 분양가 전용 84 : 5.9억

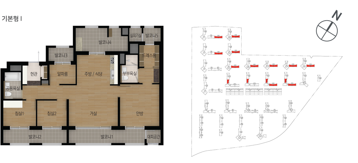
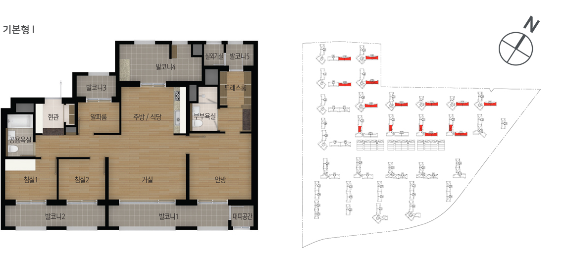
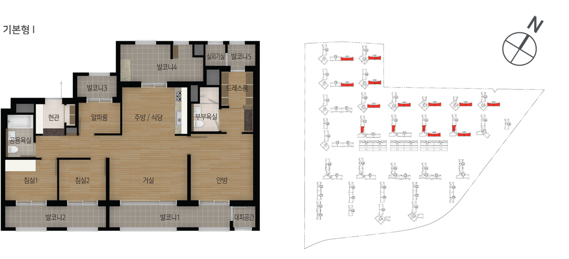
6. 평면도
1) 59A


2) 84A



성남시에 거주하시는 당해분들만 청약이 가능하므로 성남시 거주자문들은 꼭좀 지원해보시길 바랍니다.
7. 입주자 모집공고
8. Q&A
Q. 성남시에만 살아야 청약이 가능해요?
A. 네, 성남시에 거주하는 무주택 세대주만 청약이 가능합니다.
Q. 다자녀 특별공급 태아도 자녀수에 포함 할수 있을까요?
A. 네 가능 합니다.
입주자모집공고일을 기준으로 임신중이었고, 2자녀가 있다면 청약 가능합니다.
Q. 부부가 세대 분리되어있는케이스는 부부 모두 세대주 청약이 가능할까요?
A. 불가합니다.
부부는 세대분리가 되어있더라도 하나의 세대로 봅니다.
두명 모두 청약후 당첨된다면 부적격 처리됩니다.
Q. 3기 신도시의 사전청약이 당첨되었는데 청약해도되나요?
A. 네 가능합니다.
다만 당첨되었을경우에는 사전청약 물량은 자동 취소됨에 유의 해야합니다.
Q. 재당첨 제한에 걸려있는데 청약 신청이 가능 할까요?
A. 불가 합니다.
재당첨 제한자 ( 세대원 포함 ) 청약 신청이 불가합니다.
Q. 당첨되고 전세주고 전세금으로 잔금 납부 될까요?
A. 가능합니다. 계약금 10%는 먼저 내고 잔금일 까지 (2022 . 3. 29 )
전세 임차인을 구해서 전세보증금으로 잔금 납부 가능합니다.
Q.주택 담보 대출이 가능할까요?
A. 가능할것으로 보입니다. ( 100%확신은 못함 )
주택담보 대출은 KB시세의 15억 이하로만 나옵니다.
현재 시세가 15억 이하로 형성되어있으므로 왠만하면 가능하다 보여집니다.
9억 이하는 40% 9억초과 15억 까지는 20%까지 가능하기때문에
전용 84는 KB시세가 13 ~ 14억 정도이기때문에 약 4.2억 ~4.4억 가능할것으로 보여집니다.
Q. 당첨되면 실거주 해야할까요?
A. 실거주 의무는 없습니다. 전세 가능합니다
Q. 청약 신청은 어디서 해요?
A. 청약홈에서 12.9 ~ 10일 PC 또는 모바일앱으로 신청 가능합니다.
Q. 청약 통장이 필요한가요?
A. 청약 통장과 청약 증거금은 필요 하지 않습니다.
Q. 양도세 비과세 받으려면 ?
A. 네, 2년 실거주 요건이 필요 합니다.
9. 다른 부동산 볼거리
3차 공공분양 사전청약 접수 시작
3차 공공분양 사전청약 접수 시작 공공분양 사전청약에 이어 11월 18(목) 모집공고를 시작으로 4천1백 호 규모의 3차 사전청약을 시행 한다고 합니다. 1. 사전청약 접수 일정 청약 신청
www.appletong.com
신혼부부, 1인 가구, 청년 생애최초 특별공급 가능!!
신혼부부, 1인가구, 청년 생애최초 특별공급 가능!!
신혼부부, 1인 가구, 청년 생애최초 특별공급 가능!! 무자녀 신혼부부와 1인가구, 청년이 생애최초 특별 공급이 가능해진다고 한다. 아니, 이런 혁명적인일이 있을 수가 있나?? 어디 한번
www.appletong.com
주택금융공사 보금자리론
주택금융공사 보금자리론 집을 사는게 꿈이지만, 어찌나 그렇게 집마련하는게 어려운지 미리 공부 할겸 해서 내가 나중에 참고 하려고 보금자리론에 대해 정리 해놓는다. 1. 상품 종류 주택금
www.appletong.com
'사는 이야기 > 부동산 정보' 카테고리의 다른 글
| 나주역자이 리버파크 입주자모집공고 분석 (0) | 2021.12.28 |
|---|---|
| 더샵 송도 아크베이 B3BL 수도권 추첨제 가능 (0) | 2021.12.28 |
| 화성 동탄신도시 전매제한 없음 100% 추첨제 모집공고 (12월 1일) (0) | 2021.11.26 |
| 서울 줍줍 무순위 추첨제 신내역 금강 펜테리움 (11월 29일) (0) | 2021.11.24 |
| 3차 공공분양 사전청약 접수 시작 (0) | 2021.11.17 |
댓글